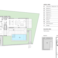
Bedrooms: 3 Built m² - 152
Bathrooms: 2+1 Pool - yes
Contact us for more information.
Finding your dream home in Costa Blanca.
Contact
info@ellesseestates.com
+34 744 780 785
© 2025. All rights reserved.
+372 5225 718 (WhatsApp)